1. Home
  2. Search Listings
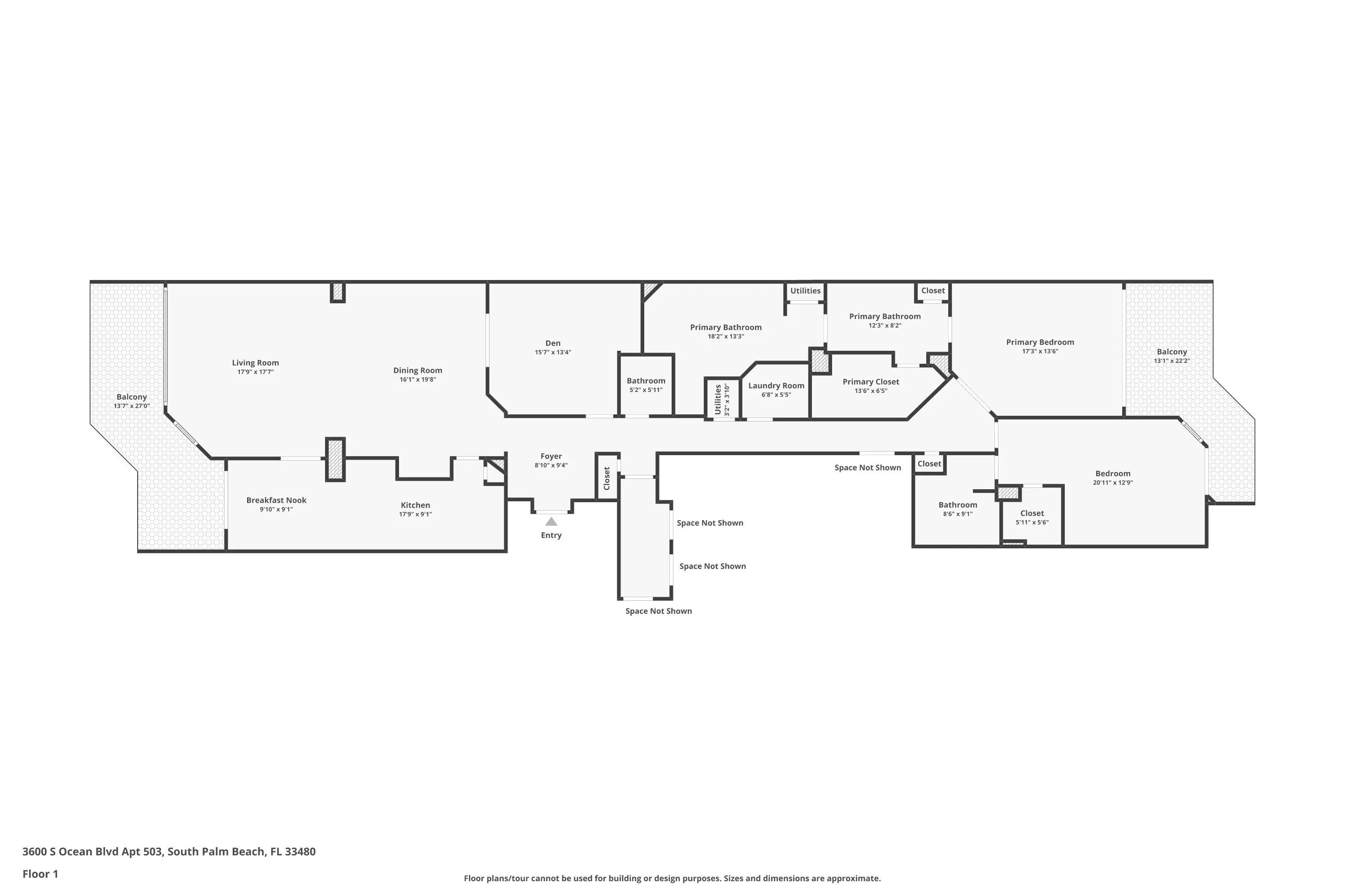
  3. 3600 S Ocean Boulevard #503 South Palm Beach, FL - 33480
NEW
  • MLS® #: RX-11164088
  • 3600 S Ocean Boulevard #503
  • South Palm Beach, FL 33480
  • $1,350,000
  • 3 Beds, 3 Bath, 2,317 SqFt
  • Residential

STUNNING DIRECT OCEANFRONT TURNKEY CONDO DESIGNED BY RENOWNED BRIAN GLUCKSTEIN INTERIOR DESIGNER. THIS CONDO FEATURES 3 BEDROOMS, 2 FULLBATHS AND 1 HALF BATH. THE 3RD BEDROOM IS CURRENTLY USED AS A MEDIA ROOM/OFFICE WITH BEAUTIFUL BUILTIN DESK UNIT. EAT IN KITCHEN HAS GRANITE COUNTERS BEAUTIFUL CABINETRY AND TILE BACKSPLASH. SURROUND SOUND THROUGHOUT WITH CUSTOM WET BAR FOR ENTERTAINING, MARBLE TILE FLOORS THROUGHOUT WITH RUGS IN BEDROOMS AND LIVING ROOM. TWO WALK IN CLOSETS PLUS A UTILITY CLOSET AND LINEN CLOSET. ARRIVE TO YOUR HOME VIA SEMI PRIVATE ELEVATOR WHICH TAKES YOU DIRECTLY TO YOUR CONDO. TWO SPACIOUS BALCONIES, ONE FOR SUNRISE AND ONE FOR SUNSETS. FULL ACCORDION SHUTTER FOR STORM PROTECTION. IN ADDITION THERE ARE 2 ASSIGNED PARKING SPACES PLUS GUEST SPOTS.

View Virtual Tour

Essential Information

  • MLS® #RX-11164088
  • Price$1,350,000
  • CAD Dollar$1,847,617
  • UK Pound£1,004,050
  • Euro€1,148,405
  • HOA Fees2400
  • Bedrooms3
  • Bathrooms3.00
  • Full Baths2
  • Half Baths1
  • Square Footage2,317
  • Year Built1995
  • TypeResidential
  • Sub-TypeCondo/Coop
  • Style4+ Floors
  • Unit Floor5
  • StatusNew
  • HOPANo Hopa

Restrictions

Buyer Approval, Interview Required, Lease OK, Lease OK w/Restrict, Maximum # Vehicles, No RV, Tenant Approval

Community Information

  • Address3600 S Ocean Boulevard #503
  • Area5004
  • SubdivisionTHIRTY SIX HUNDRED OCEAN CONDO
  • CitySouth Palm Beach
  • CountyPalm Beach
  • StateFL
  • Zip Code33480

Amenities

  • ViewOcean, Pool
  • Is WaterfrontYes
  • WaterfrontOcean Access, Oceanfront
  • Pets AllowedRestricted

Amenities

Bike Storage, Elevator, Extra Storage, Lobby, Pool, Sauna, Spa-Hot Tub, Trash Chute

Utilities

Cable, Electric, Public Sewer, Public Water

Parking

Assigned, Covered, Vehicle Restrictions

Interior

  • HeatingCentral
  • CoolingCentral
  • # of Stories6
  • Stories6.00

Interior Features

Elevator, Walk-in Closet, Wet Bar

Appliances

Dishwasher, Disposal, Dryer, Fire Alarm, Freezer, Ice Maker, Microwave, Range - Electric, Refrigerator, Storm Shutters, Washer, Water Heater - Elec

Exterior

  • Lot DescriptionEast of US-1, Flood Zone
  • WindowsDrapes
  • ConstructionConcrete, Stucco

Exterior Features

Covered Balcony, Open Balcony, Shutters

School Information

  • ElementaryLantana Elementary School
  • MiddleLantana Middle School
  • HighLake Worth High School
  • Office: Illustrated Properties Llc (we

Property Location

Please provide a valid email address.

3600 S Ocean Boulevard #503 on www.webmail.jupiteroceanfrontcondos.us

Offered at the current list price of $1,350,000, this home for sale at 3600 S Ocean Boulevard #503 features 3 bedrooms and 3 bathrooms. This real estate listing is located in THIRTY SIX HUNDRED OCEAN CONDO of South Palm Beach, FL 33480 and is approximately 2,317 square feet. 3600 S Ocean Boulevard #503 is listed under the MLS ID of RX-11164088 and has been available through www.webmail.jupiteroceanfrontcondos.us for the South Palm Beach real estate market for 3 days.

Similar Listings to 3600 S Ocean Boulevard #503

Photo of Listing #RX-11104134
  • MLS® #: RX-11104134
  • 3600 S Ocean Boulevard #203
  • South Palm Beach, FL 33480
  • $1,490,000
  • 3 Bed, 3 Bath, 2,400 SqFt
  • Residential
Add as Favorite
Photo of Listing #RX-11144949
  • MLS® #: RX-11144949
  • 4000 S Ocean Boulevard #502
  • South Palm Beach, FL 33480
  • $1,200,000
  • 3 Bed, 4 Bath, 2,070 SqFt
  • Residential
Add as Favorite
Photo of Listing #RX-11163401
  • MLS® #: RX-11163401
  • 3610 S Ocean Boulevard #607
  • South Palm Beach, FL 33480
  • $1,195,000
  • 2 Bed, 2 Bath, 1,637 SqFt
  • Residential
Add as Favorite

All listings featuring the BMLS logo are provided by Beaches MLS Inc. Copyright 2026 Beaches MLS. This information is not verified for authenticity or accuracy and is not guaranteed.
© 2026 Beaches Multiple Listing Service, Inc. All rights reserved.

Listing information last updated on February 20th, 2026 at 3:19pm CST.