1. Home
  2. Search Listings
  3. 311 Wildermere Road West Palm Beach, FL - 33401
  • MLS® #: RX-11127544
  • 311 Wildermere Road
  • West Palm Beach, FL 33401
  • $1,390,000
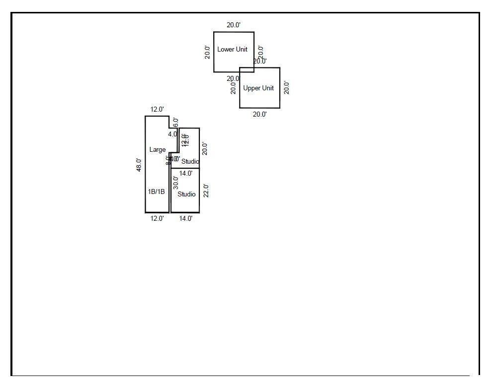
  • 3 Beds, 5 Bath, 2,380 SqFt
  • Multi-Unit

Located in the desirable Mango Promenade Historic District, this 5-unit building presents a rare chance to generate income or be transformed into your dream home. Nestled in between El Cid & Downtown West Palm Beach, just 1 block from the Intracoastal Waterway, the property is moments from the beach, Worth Avenue, Palm Beach Island, City Place, Grandview Public Market, Brightline Station, & PBI Airport. The current layout provides steady rental income with room for growth, while offering flexibility to be converted into a single-family home with separate guest apartments. Enjoy walking distance to PBA University, the Norton Museum of Art, & a variety of shops, cafes, & restaurants. Schedule a private showing today & explore the countless possibilities this prime location affords.All measurements & information are deemed reliable but not guaranteed. Buyer to independently verify.

View Virtual Tour

Essential Information

  • MLS® #RX-11127544
  • Price$1,390,000
  • CAD Dollar$1,949,267
  • UK Pound£1,035,343
  • Euro€1,192,417
  • HOA Fees0.00
  • Bedrooms3
  • Bathrooms5.00
  • Full Baths5
  • Square Footage2,380
  • Year Built1925
  • TypeMulti-Unit
  • Sub-TypeQuad Plex
  • RestrictionsNone
  • StyleNo
  • StatusActive

Community Information

  • Address311 Wildermere Road
  • Area5440
  • SubdivisionCARLBERG COURT ADD 1
  • CityWest Palm Beach
  • CountyPalm Beach
  • StateFL
  • Zip Code33401

Amenities

  • WaterfrontNone

Utilities

Cable, 3-Phase Electric, Public Sewer, Public Water

Interior

  • HeatingNo Heat
  • CoolingWall-Win A/C
  • # of Stories2

Exterior

  • Exterior FeaturesOpen Patio
  • Lot Description< 1/4 Acre, East of US-1
  • RoofComp Shingle
  • ConstructionFrame, Metal, Woodside

School Information

  • ElementaryPalm Beach Public
  • MiddleConniston Middle School

High

Forest Hill Community High School

  • Office: Compass Florida Llc

Property Location

Please provide a valid email address.

311 Wildermere Road on www.webmail.jupiteroceanfrontcondos.us

Offered at the current list price of $1,390,000, this home for sale at 311 Wildermere Road features 3 bedrooms and 5 bathrooms. This real estate listing is located in CARLBERG COURT ADD 1 of West Palm Beach, FL 33401 and is approximately 2,380 square feet. 311 Wildermere Road is listed under the MLS ID of RX-11127544 and has been available through www.webmail.jupiteroceanfrontcondos.us for the West Palm Beach real estate market for 21 days.

Facts About West Palm Beach, FL

To enjoy a taste of the local ethnic cuisine that has inspired West Palm Beach since its inception visit Havana. This Cuban-style restaurant features specialties like Cuban coffee, fried churros , exotic fruits and slow roasted Spanish chicken.

The Museum at Ragtops Motorcars is one of West Palm Beach most interesting attractions.  It has housed some of the most interesting 1950s and 1960s memorabilia since it opened in 1908.

Looking for great shopping and entertainment in West Palm Beach Florida? Look no further than Clematis Street. It is home to some of West Palm Beach's most vibrant and entertaining shops, restaurants and nightclubs.

Similar Listings to 311 Wildermere Road

Photo of Listing #RX-11126840
  • MLS® #: RX-11126840
  • 3761 93rd Lane N
  • West Palm Beach, FL 33403
  • $1,200,000
  • 8 Bed, 8 Bath, 4,440 SqFt
  • Multi-Unit
Add as Favorite
Photo of Listing #RX-11102070
  • MLS® #: RX-11102070
  • 3808 Broadway
  • West Palm Beach, FL 33407
  • $1,175,000
  • 5 Bed, 4 Bath, 3,024 SqFt
  • Multi-Unit
Add as Favorite

All listings featuring the BMLS logo are provided by Beaches MLS Inc. Copyright 2025 Beaches MLS. This information is not verified for authenticity or accuracy and is not guaranteed.
© 2025 Beaches Multiple Listing Service, Inc. All rights reserved.

Listing information last updated on October 18th, 2025 at 4:51pm CDT.