1. Home
  2. Search Listings
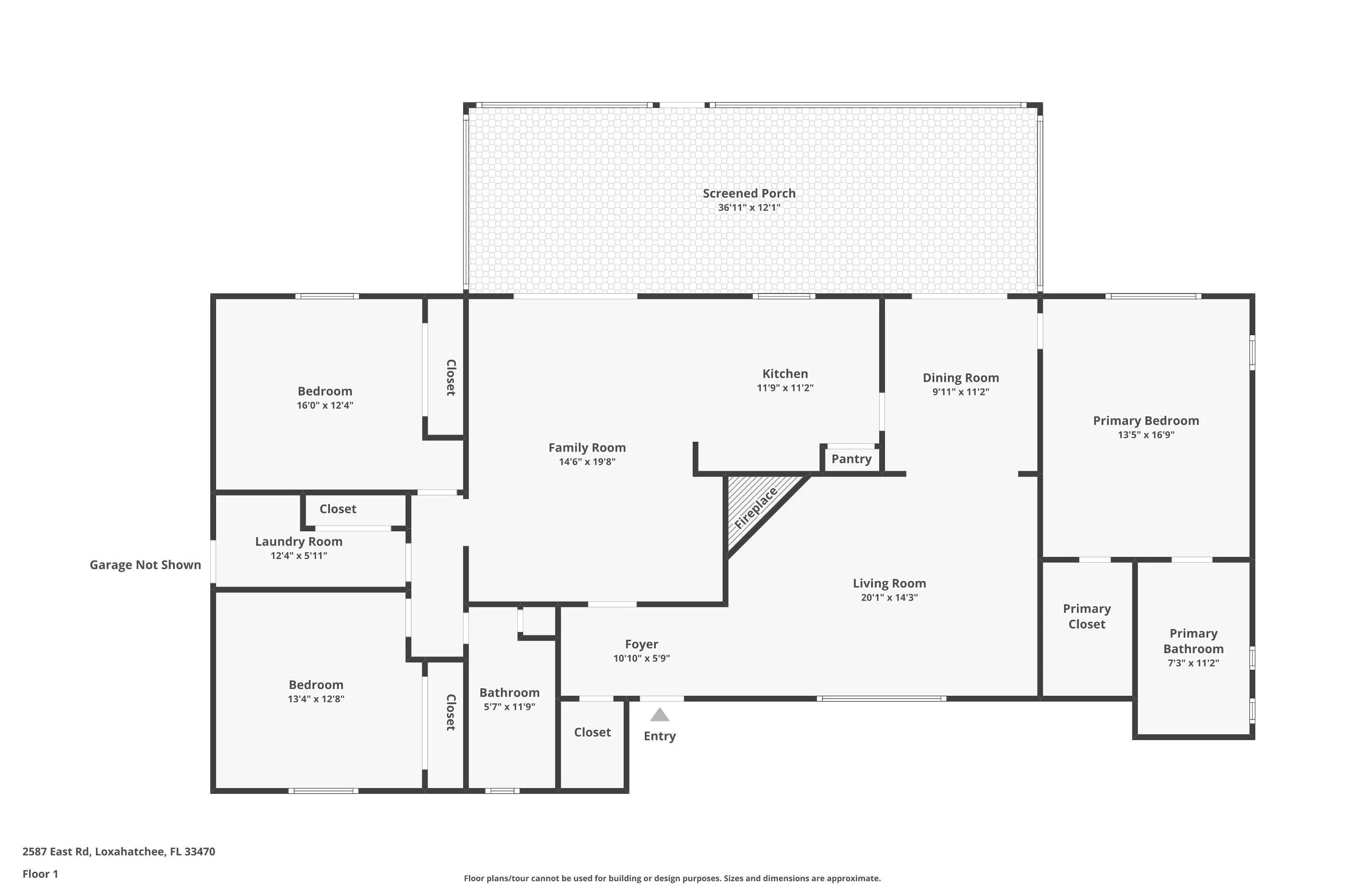
  3. 2587 E Road Loxahatchee Groves, FL - 33470
  • MLS® #: RX-11112180
  • 2587 E Road
  • Loxahatchee Groves, FL 33470
  • $1,900,000
  • 4 Beds, 5 Bath, 2,704 SqFt
  • Residential

Discover nearly 6 acres of endless possibilities in the highly sought-after Loxahatchee Groves neighborhood--where large parcels with paved road access and private gated entry are a rare find. Currently operating as a thriving agricultural nursery, this property offers exceptional versatility--continue its agricultural success or transform it into your dream equestrian estate, complete with roping arena, stables, and more. The main residence is a solid CBS 3-bedroom, 2-bath home featuring granite countertops, a cozy fireplace, a 2-car garage, and a screened-in porch perfect for enjoying serene evenings. A separate 2-bedroom guest cottage provides ideal accommodations for extended family, caretakers, or rental income. see more

View Virtual Tour

Essential Information

  • MLS® #RX-11112180
  • Price$1,900,000
  • CAD Dollar$2,592,672
  • UK Pound£1,412,893
  • Euro€1,611,685
  • Bedrooms4
  • Bathrooms5.00
  • Full Baths3
  • Half Baths2
  • Square Footage2,704
  • Year Built1980
  • TypeResidential
  • Sub-TypeSingle Family Detached
  • RestrictionsNone
  • StyleRanch
  • StatusActive
  • HOPANo Hopa

Community Information

  • Address2587 E Road
  • Area5590
  • SubdivisionLOXAHATCHEE GROVES
  • CityLoxahatchee Groves
  • CountyPalm Beach
  • StateFL
  • Zip Code33470

Amenities

  • AmenitiesHorse Trails, Horses Permitted
  • WaterfrontPond
  • Pets AllowedYes

Utilities

Cable, Electric, Septic, Well Water

Interior

  • Interior FeaturesEntry Lvl Lvng Area
  • HeatingCentral
  • CoolingCentral
  • # of Stories1
  • Stories1.00

Appliances

Auto Garage Open, Dryer, Range - Electric, Refrigerator, Washer, Water Heater - Elec, Water Softener-Owned

Exterior

  • RoofComp Shingle
  • ConstructionCBS

Exterior Features

Extra Building, Fruit Tree(s), Open Porch, Screen Porch, Summer Kitchen, Utility Barn

Lot Description

5 to <10 Acres, Paved Road, Private Road

School Information

  • ElementaryLoxahatchee Groves Elementary
  • MiddleWestern Pines Community Middle

High

Seminole Ridge Community High School

  • Office: United Realty Group, Inc

Property Location

Please provide a valid email address.

2587 E Road on www.webmail.jupiteroceanfrontcondos.us

Offered at the current list price of $1,900,000, this home for sale at 2587 E Road features 4 bedrooms and 5 bathrooms. This real estate listing is located in LOXAHATCHEE GROVES of Loxahatchee Groves, FL 33470 and is approximately 2,704 square feet. 2587 E Road is listed under the MLS ID of RX-11112180 and has been available through www.webmail.jupiteroceanfrontcondos.us for the Loxahatchee Groves real estate market for 212 days.

Similar Listings to 2587 E Road

Photo of Listing #RX-11061694
  • MLS® #: RX-11061694
  • 13528 N 6th Court N
  • Loxahatchee Groves, FL 33470
  • $1,995,000
  • 4 Bed, 2 Bath, 2,148 SqFt
  • Residential
Add as Favorite
Photo of Listing #RX-11137975
  • MLS® #: RX-11137975
  • 14095 Biddex Road
  • Loxahatchee Groves, FL 33470
  • $1,960,000
  • 4 Bed, 3 Bath, 2,455 SqFt
  • Residential
Add as Favorite
Photo of Listing #RX-11160326
  • MLS® #: RX-11160326
  • 14685 40th Street N
  • Loxahatchee Groves, FL 33470
  • $1,645,000
  • 4 Bed, 3 Bath, 1,872 SqFt
  • Residential
Add as Favorite
Photo of Listing #RX-11114534
  • MLS® #: RX-11114534
  • 15884 North Road
  • Loxahatchee Groves, FL 33470
  • $1,637,000
  • 3 Bed, 2 Bath, 1,600 SqFt
  • Residential
Add as Favorite

All listings featuring the BMLS logo are provided by Beaches MLS Inc. Copyright 2026 Beaches MLS. This information is not verified for authenticity or accuracy and is not guaranteed.
© 2026 Beaches Multiple Listing Service, Inc. All rights reserved.

Listing information last updated on March 2nd, 2026 at 10:51am CST.