1. Home
  2. Search Listings
  3. 5250 Rock Island Road Tamarac, FL - 33319
  • MLS® #: RX-11106473
  • 5250 Rock Island Road
  • Tamarac, FL 33319
  • $999,900
  • 4 Beds, 3 Bath, 2,354 SqFt
  • Residential

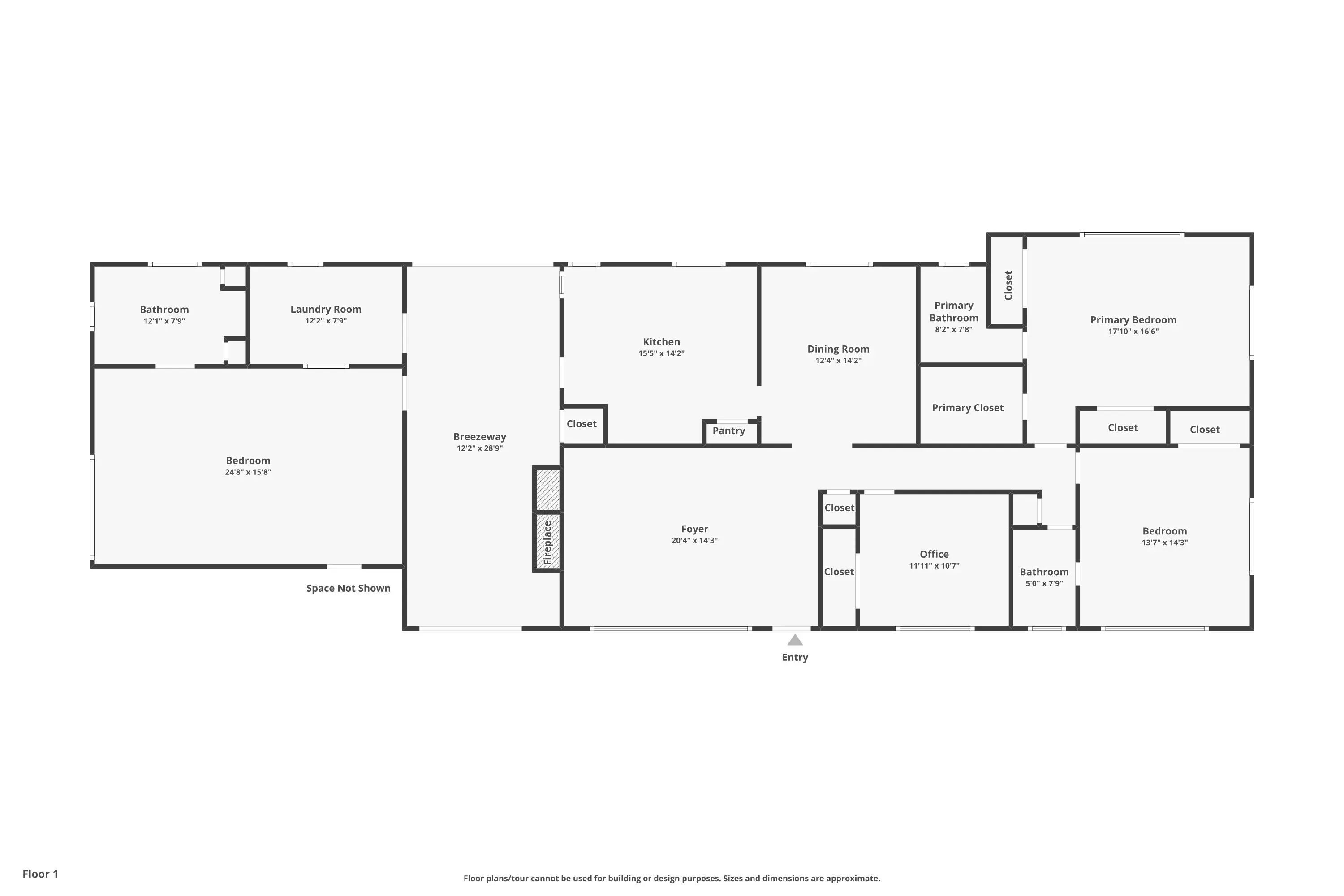
Expansive 1.22-Acre Property with Endless Possibilities in Tamarac!This rare 1.22-acre lot features a spacious 4-bedroom, 3-bath home offering comfortable living and room to grow. The residence includes a private in-law suite, vaulted ceilings, impact windows, and a cozy wood-burning fireplace--perfect for multi-generational living or income potential. Enjoy the privacy and space of acreage living while being minutes from major conveniences and the Turnpike.For developers and investors, this is a true opportunity. Zoned R-1 with a Low 5 Residential Overlay, the property offers potential to subdivide and build up to five single-family homes per acre (subject to city approval). The lot backs up to the newly built Manor Parc community, sits across from luxury homes in the Woodlands Golf

View Virtual Tour

Essential Information

  • MLS® #RX-11106473
  • Price$999,900
  • CAD Dollar$1,357,140
  • UK Pound£733,502
  • Euro€842,401
  • Bedrooms4
  • Bathrooms3.00
  • Full Baths3
  • Square Footage2,354
  • Year Built1960
  • TypeResidential
  • Sub-TypeSingle Family Detached
  • RestrictionsNone
  • StatusActive Under Contract
  • HOPANo Hopa

Community Information

  • Address5250 Rock Island Road
  • Area3641
  • SubdivisionFT LAUDERDALE TRUCK FARMS
  • CityTamarac
  • CountyBroward
  • StateFL
  • Zip Code33319

Amenities

  • AmenitiesNone, Sidewalks
  • UtilitiesElectric, Public Water, Septic
  • Parking2+ Spaces, Drive - Circular
  • # of Garages2
  • WaterfrontNone
  • Pets AllowedYes

Interior

  • HeatingCentral
  • CoolingCentral
  • FireplaceYes
  • # of Stories1
  • Stories1.00

Interior Features

Ctdrl/Vault Ceilings, Entry Lvl Lvng Area, Fireplace(s)

Appliances

Cooktop, Dishwasher, Dryer, Range - Electric, Refrigerator, Wall Oven, Washer, Washer/Dryer Hookup, Water Heater - Elec

Exterior

  • Lot Description1 to < 2 Acres
  • WindowsImpact Glass
  • RoofConcrete Tile
  • ConstructionCBS, Concrete

School Information

  • ElementaryPinewood Elementary School
  • MiddleSilver Lakes Middle School
  • HighBoyd H. Anderson High School
  • Office: Ryan Critch Real Estate

Property Location

Please provide a valid email address.

5250 Rock Island Road on www.webmail.jupiteroceanfrontcondos.us

Offered at the current list price of $999,900, this home for sale at 5250 Rock Island Road features 4 bedrooms and 3 bathrooms. This real estate listing is located in FT LAUDERDALE TRUCK FARMS of Tamarac, FL 33319 and is approximately 2,354 square feet. 5250 Rock Island Road is listed under the MLS ID of RX-11106473 and has been available through www.webmail.jupiteroceanfrontcondos.us for the Tamarac real estate market for 216 days.

Similar Listings to 5250 Rock Island Road

Photo of Listing #RX-11114519
  • MLS® #: RX-11114519
  • 6106 Royal Poinciana Lane
  • Tamarac, FL 33319
  • $1,089,000
  • 5 Bed, 3 Bath, 3,210 SqFt
  • Residential
Add as Favorite

All listings featuring the BMLS logo are provided by Beaches MLS Inc. Copyright 2026 Beaches MLS. This information is not verified for authenticity or accuracy and is not guaranteed.
© 2026 Beaches Multiple Listing Service, Inc. All rights reserved.

Listing information last updated on February 12th, 2026 at 3:03pm CST.