1. Home
  2. Search Listings
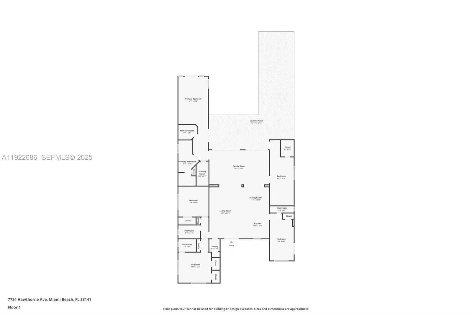
  3. 7724 Hawthorne Ave Miami Beach, FL - 33141-1038
  • MLS® #: A11922686
  • 7724 Hawthorne Ave
  • Miami Beach, FL 33141-1038
  • $3,039,000
  • 5 Beds, 5 Bath, 2,473 SqFt
  • Residential

Discover the ultimate Boater’s Dream in comfort and convenience with this exceptional waterfront retreat direct access to open water, no bridges. This home is designed for those seeking a resort-style marine lifestyle. 5 bedrooms 5 baths (4 en-suite) with 3 separate entrances for guests or office. Larger than Tax Roll (2,730 SF as per Owner). Solid White Oak flooring throughout. Open Floor Plan combines kitchen, dining, living and family room into a single large space. Eurocraft Impact Doors and Windows throughout. Modern High-end gourmet kitchen features Twin Sub Zero 36" Refrigerator and 36" Freezer built-in, Bosch Dishwasher, Wolf oven, Thermador 36” induction cooktop, Concealed pantry and more. Within close proximity to Bal Harbor, South Beach, Mount Sinai and top-rated schools. -The frontage features: Design Landscape, two-car Carport plus 2 more car spaces, 250 square feet covered front porch and designer fountain The backyard features: 60 feet water frontage, no fixed bridges, direct ocean access, 1,000+ square feet of covered terrace. Jet ski/Kayak platform, 2001 Century 23 center console boat and 3500 lift system included. Summer kitchen with refrigerator, built-in grill natural gas. Wet Bar, Hot Tub, Natural Gas fire pit and shower. -Security and other features: Home Security Alarm system with security cameras and Video Recorder. Fiber optic internet. Generac Standby electric generator. Natural gas, too many things to mention. Call for an appointment now.

View Virtual Tour

Essential Information

  • MLS® #A11922686
  • Price$3,039,000
  • CAD Dollar$4,126,561
  • UK Pound£2,229,207
  • Euro€2,559,601
  • Bedrooms5
  • Bathrooms5.00
  • Full Baths5
  • Square Footage2,473
  • Year Built1952
  • TypeResidential
  • Sub-TypeSingle Family Residence
  • StyleDetached, One Story
  • StatusActive

Community Information

  • Address7724 Hawthorne Ave
  • Area32
  • SubdivisionBISCAYNE POINT
  • CityMiami Beach
  • CountyMiami-Dade
  • StateFL
  • Zip Code33141-1038

Amenities

  • Parking Spaces2
  • ViewCanal, Garden
  • Is WaterfrontYes
  • WaterfrontCanal Front

Parking

Attached Carport, Covered, Driveway, On Street

Interior

  • InteriorHardwood, Wood
  • HeatingCentral, Electric
  • CoolingCentral Air
  • # of Stories1

Interior Features

Breakfast Bar, Built-in Features, Bedroom on Main Level, Closet Cabinetry, Dual Sinks, Eat-in Kitchen, Jetted Tub, Main Level Primary, Pantry, Separate Shower, Walk-In Closet(s)

Appliances

Dryer, Electric Range, Gas Water Heater, Microwave, Refrigerator, Water Softener Owned, Water Purifier, Washer

Exterior

  • WindowsImpact Glass
  • RoofBarrel, Flat, Tile
  • ConstructionBlock

Exterior Features

Barbecue, Outdoor Grill, Outdoor Shower, Porch, Room For Pool, Security/High Impact Doors

School Information

  • ElementaryBiscayne
  • MiddleNautilus
  • HighMiami Beach
  • Office: Compass Realty Group
Please provide a valid email address.

7724 Hawthorne Ave on www.webmail.jupiteroceanfrontcondos.us

Offered at the current list price of $3,039,000, this home for sale at 7724 Hawthorne Ave features 5 bedrooms and 5 bathrooms. This real estate listing is located in BISCAYNE POINT of Miami Beach, FL 33141-1038 and is approximately 2,473 square feet. 7724 Hawthorne Ave is listed under the MLS ID of A11922686 and has been on the Miami Beach real estate market for 71 days.

Facts About Miami Beach, FL

Over the past 20 years, no American beach has generated as much buzz as the one that hugs Ocean Drive in Miami Beach. Fringed with palms, backed by Art Deco architecture and pulsating with urban energy, South Beach is the place to stretch out.

Similar Listings to 7724 Hawthorne Ave

Photo of Listing #A11950692
  • MLS® #: A11950692
  • 7770 Hawthorne Ave
  • Miami Beach, FL 33141-1038
  • $2,895,000
  • 4 Bed, 3 Bath, 1,978 SqFt
  • Residential
Add as Favorite
Photo of Listing #A11731184
  • MLS® #: A11731184
  • 6121 La Gorce Dr
  • Miami Beach, FL 33140-2118
  • $2,997,000
  • 4 Bed, 2 Bath, 2,359 SqFt
  • Residential
Add as Favorite
Photo of Listing #A11766185
  • MLS® #: A11766185
  • 5251 La Gorce Dr
  • Miami Beach, FL 33140-2105
  • $3,377,000
  • 3 Bed, 4 Bath, 2,123 SqFt
  • Residential
Add as Favorite
Photo of Listing #A11798022
  • MLS® #: A11798022
  • 4316 Sheridan Ave
  • Miami Beach, FL 33140-3118
  • $3,000,000
  • 3 Bed, 4 Bath, 1,953 SqFt
  • Residential
Add as Favorite

The data relating to real estate on this web site comes in part from the Internet Data Exchange program of the MLS of the REALTOR® Association of Greater Miami and the Beaches, and is updated as of February 12th, 2026 at 1:51pm CST (date/time).

All information is deemed reliable but not guaranteed by the MLS and should be independently verified. All properties are subject to prior sale, change, or withdrawal. Neither listing broker(s) nor Waterfront Properties and Club Communities shall be responsible for any typographical errors, misinformation, or misprints, and shall be held totally harmless from any damages arising from reliance upon these data. © 2026 MLS of RAMB.

The information being provided is for consumers' personal, non-commercial use and may not be used for any purpose other than to identify prospective properties consumers may be interested in purchasing