1. Home
  2. Search Listings
  3. 272 191st Ter Sunny Isles Beach, FL - 33160-2316
  • MLS® #: A11918804
  • 272 191st Ter
  • Sunny Isles Beach, FL 33160-2316
  • $1,490,000
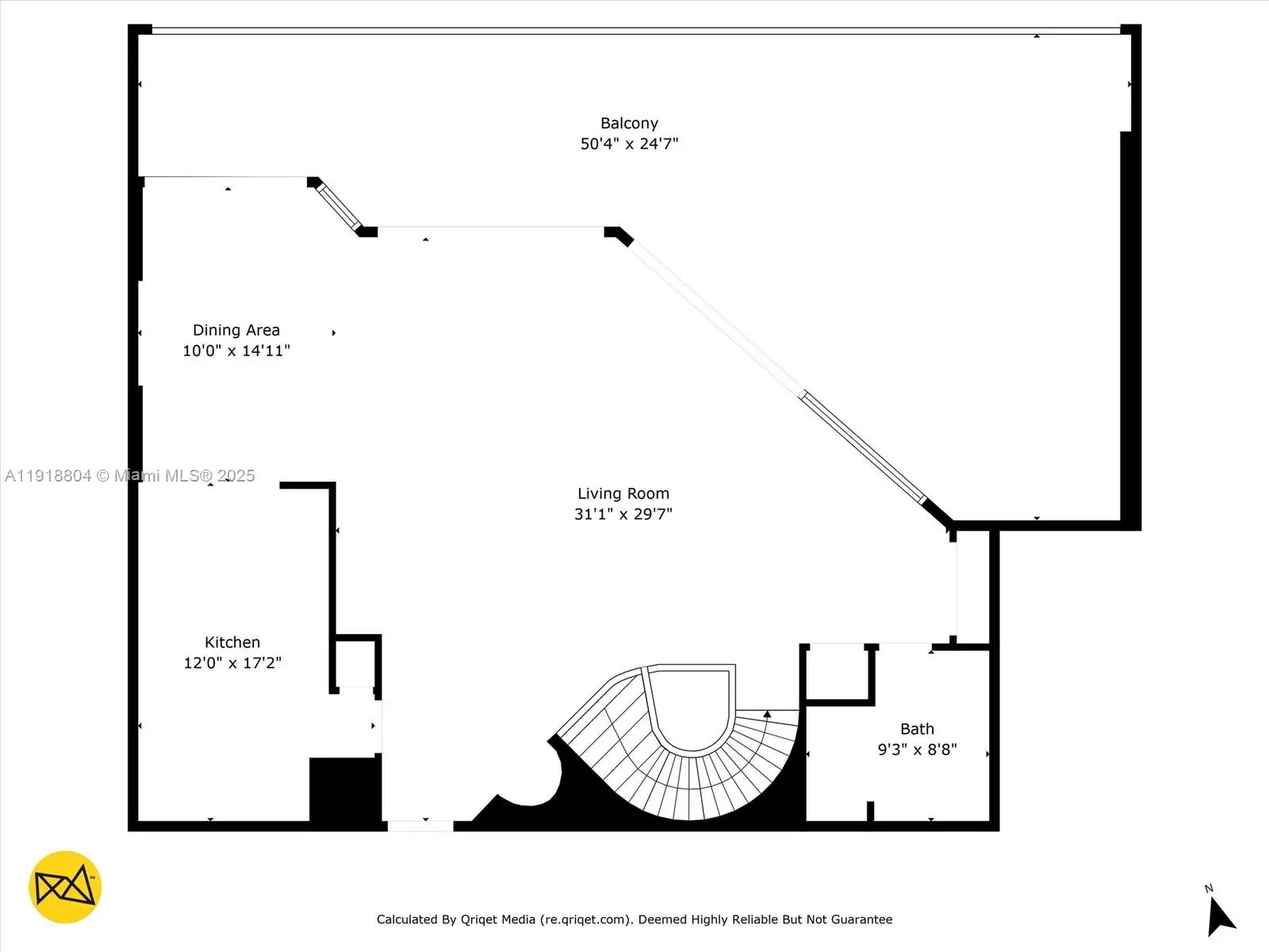
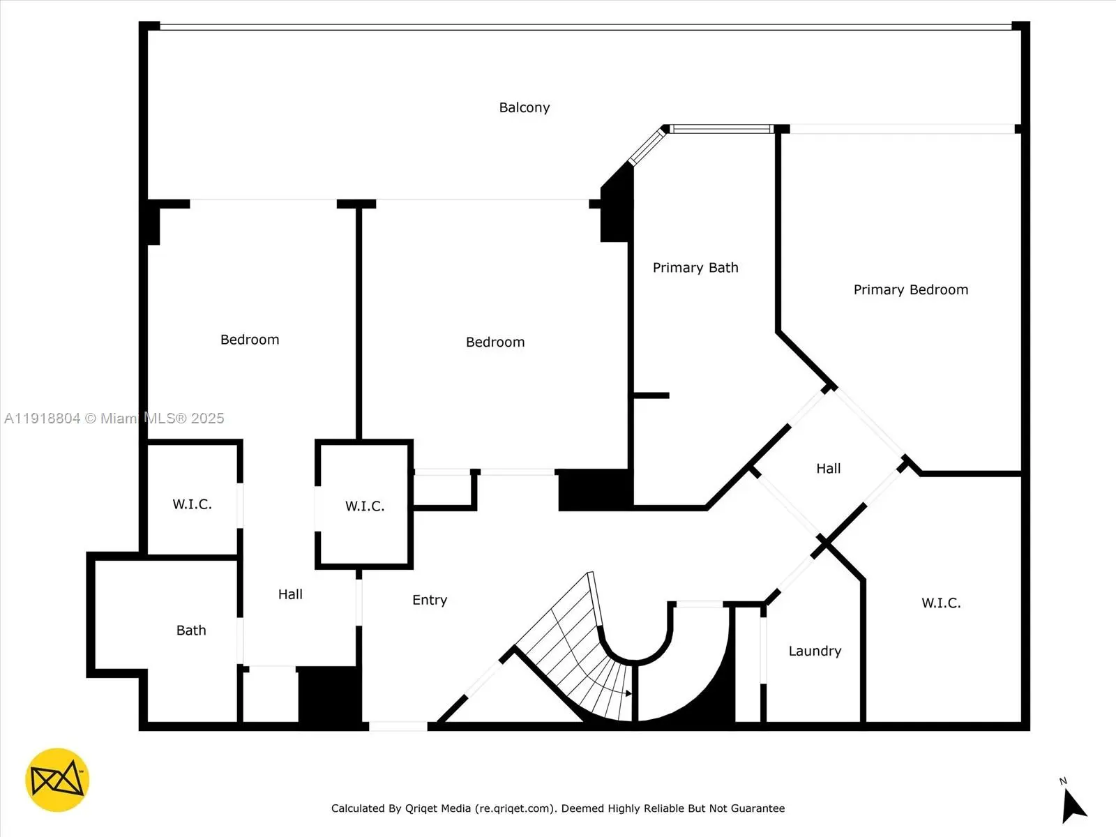
  • 3 Beds, 2 Bath, 1,748 SqFt
  • Residential

Beautiful elevated single-family home in Sunny Isles Beach! This charming residence offers just under 1,800 sq ft under AC plus an oversized 600 sq ft garage that’s perfect for converting into an additional bedroom, bathroom, home office, gym, or guest suite. Built in 1992, the home features modern PVC plumbing and a well-maintained Spanish-tile roof in excellent condition. Inside, the layout is spacious and functional, ready for light renovation or modernization to suit your taste. One of the standout features is the home’s high elevation, noticeably higher than neighboring properties, providing exceptional peace of mind during heavy rains. The lot is beautifully landscaped with mature mango, banana, lemon, and avocado trees, creating a private backyard oasis with plenty of room for outdoor living, gardening, or a future pool. Additional features include a large multi-car driveway, excellent curb appeal, and no HOA, giving you full flexibility for parking, pets, and exterior improvements. Located in the highly desirable Golden Shores neighborhood of Sunny Isles Beach, this home is just minutes from world-class beaches, parks, top-rated schools, restaurants, and shopping. A rare opportunity to own an elevated coastal home with incredible potential in one of South Florida’s most sought-after communities.

View Virtual Tour

Essential Information

  • MLS® #A11918804
  • Price$1,490,000
  • CAD Dollar$2,040,890
  • UK Pound£1,104,445
  • Euro€1,263,623
  • Bedrooms3
  • Bathrooms2.00
  • Full Baths2
  • Square Footage1,748
  • Year Built1991
  • TypeResidential
  • Sub-TypeSingle Family Residence
  • StyleDetached, One Story
  • StatusActive

Community Information

  • Address272 191st Ter
  • Area22
  • SubdivisionGOLDEN SHORES OCEAN BLVD
  • CitySunny Isles Beach
  • CountyMiami-Dade
  • StateFL
  • Zip Code33160-2316

Amenities

  • FeaturesPublic Transportation
  • # of Garages2
  • GaragesGarage Door Opener
  • ViewOther

Parking

Circular Driveway, Covered, Driveway

Interior

  • InteriorTile
  • HeatingCentral
  • CoolingCentral Air
  • # of Stories1

Interior Features

Bedroom on Main Level, First Floor Entry

Appliances

Dryer, Dishwasher, Electric Range, Disposal, Microwave, Refrigerator, Washer

Exterior

  • Exterior FeaturesDeck, Fruit Trees, Lighting
  • RoofSpanish Tile
  • ConstructionBlock

School Information

  • ElementaryNorman S. Edelcup K-8
  • MiddleHighland Oaks
  • Office: Property Pro Partners, Llc.
Please provide a valid email address.

272 191st Ter on www.webmail.jupiteroceanfrontcondos.us

Offered at the current list price of $1,490,000, this home for sale at 272 191st Ter features 3 bedrooms and 2 bathrooms. This real estate listing is located in GOLDEN SHORES OCEAN BLVD of Sunny Isles Beach, FL 33160-2316 and is approximately 1,748 square feet. 272 191st Ter is listed under the MLS ID of A11918804 and has been on the Sunny Isles Beach real estate market for 79 days.

Similar Listings to 272 191st Ter

Photo of Listing #A11690641
  • MLS® #: A11690641
  • 310 191st Ter
  • Sunny Isles Beach, FL 33160-2332
  • $1,699,000
  • 2 Bed, 2 Bath, 1,394 SqFt
  • Residential
Add as Favorite
Photo of Listing #A11960505
  • MLS® #: A11960505
  • 322 189th St
  • Sunny Isles Beach, FL 33160-2438
  • $1,690,000
  • 2 Bed, 2 Bath, 2,250 SqFt
  • Residential
Add as Favorite
Photo of Listing #A11859355
  • MLS® #: A11859355
  • 300 187th St
  • Sunny Isles Beach, FL 33160-2409
  • $1,749,000
  • 3 Bed, 2 Bath, 1,653 SqFt
  • Residential
Add as Favorite

The data relating to real estate on this web site comes in part from the Internet Data Exchange program of the MLS of the REALTOR® Association of Greater Miami and the Beaches, and is updated as of February 18th, 2026 at 3:49pm CST (date/time).

All information is deemed reliable but not guaranteed by the MLS and should be independently verified. All properties are subject to prior sale, change, or withdrawal. Neither listing broker(s) nor Waterfront Properties and Club Communities shall be responsible for any typographical errors, misinformation, or misprints, and shall be held totally harmless from any damages arising from reliance upon these data. © 2026 MLS of RAMB.

The information being provided is for consumers' personal, non-commercial use and may not be used for any purpose other than to identify prospective properties consumers may be interested in purchasing